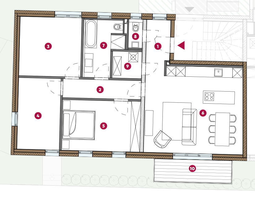
Wohnung 7
3-Zimmer 103,0 m²
Wohnung 7
Trotz gewissenhaftester Prüfung und sorgfältigster Erarbeitung sind Irrtümer nicht ausgeschlossen.
Die Darstellungen am Modell, den Bildvorlagen, sowie eventuellen Musterwohnungen geben nur einen Eindruck vom derzeitig beabsichtigten Erscheinungsbild des Bauvorhabens.
Sie sind nicht Vertragsbestandteil. Die in den Grundrissen und vom Visualisierer eingezeichneten Einrichtungsgegenstände gehören nicht zum vertraglichen Lieferumfang. Sämtliche Flächenangaben sind Circa-Werte. Eine detaillierte Baubeschreibung entnehmen Sie bitte dem Kaufvertrag oder wenden sich an den Vertrieb.
Tiefgarage

Flur I
Flur II
Zimmer 1
Zimmer 2
Zimmer 3
Wohnraum mit Küche
Bad
WC
Hauswirtschaftsraum
Balkon
